'Bloomin Pure' Juice Bar
This project focused on designing a unique and engaging hospitality space on campus, choosing between a Café that fosters community or a Temperance Bar offering an inclusive environment with non-alcoholic beverages.
The concept was rooted in the themes of ‘Pure’ and ‘Growth’, inspiring a design that incorporated a living wall, where visitors could actively participate by planting seeds. The produce grown on the wall would be harvested and used in freshly made juices, reinforcing sustainability and user interaction.
​The design aimed to create a memorable user experience through innovative spatial planning and material selection. Deliverables included surveys, concept boards, a design palette, 2D plans, sections, 3D models created in SketchUp, renders produced in Enscape, and a walkthrough video. The project emphasised user engagement and ergonomic considerations, resulting in a bespoke space tailored to the audience’s needs and preferences.

ENTRANCE AND SOCIAL SEATING

COUNTER AND KITCHEN

STUDY AREA

LIVING WALL

FLOORPLAN
-
ENTRANCE & WC
-
STAFF AREA
-
STORAGE
-
KITCHEN
-
COUNTER
-
SOCIAL SEATING
-
STUDY AREA
-
QUIETER SEATING
-
LIVING WALL
.png)
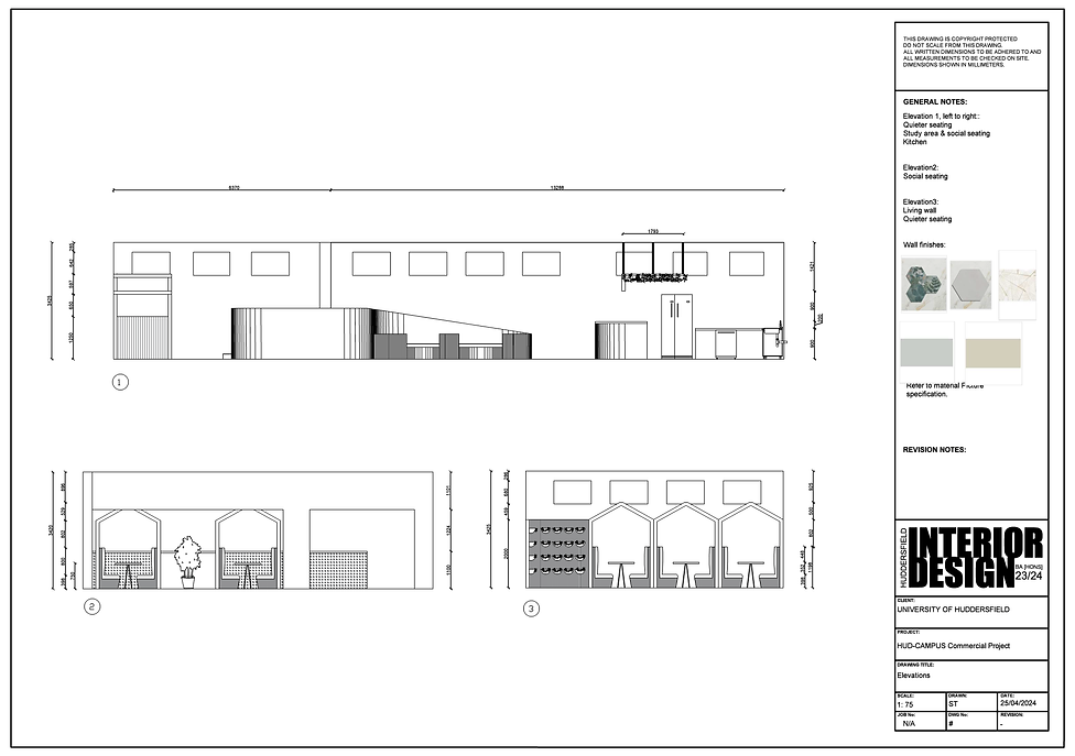
ELEVATION - REAR WALL
.png)
.png)
ELEVATION - SOCIAL SEATING
ELEVATION - LIVING WALL
.png)
SECTION - COUNTER
Technical Drawings

FLOOR PLAN

CEILING PLAN

ELEVATIONS

SEATING DETAIL

SECTION AA (COUNTER)

PLATFORM DETAIL
Design Development

Sovereign Design House is an ideal location for a campus café or temperance bar due to its central accessibility making it a perfect hub for students and faculty to connect. Its versatility allows for creative design and events, enhancing cultural and social engagement while complementing nearby campus facilities.
.png)
Disclaimer: The images used for concept inspiration are for reference purposes only and do not represent my original work.
.png)
.png)
.png)
.png)
CONCEPT COLLAGE CREATED USING PHOTOSHOP
Layout Planning
When designing the layout of the space, I carefully analysed the user pathway by sketching various configurations to gain a comprehensive perspective. This process allowed me to assess spatial flow and determine the most effective arrangement. I experimented with the positioning of key elements, including the counter, kitchen, and seating areas, to optimise both functionality and user experience.

PROPOSED SCHEDULE OF ACCOMODATION

.jpeg)





